1- комнатная

квартира в ЖК

«фили сити»

О проекте

Адрес:

Г. Москва, ЖК «Фили Сити»

Площадь:

38 м², 1 спальня

Сроки реализации:

Дизайн-проект — 3 месяца

Сдача - январь 2023 год

Светлая компактная квартира для молодой женщины, получилось максимально функциональной и эргономичной. Изысканность в деталях и нюансах, спокойный, мягкий и нежными такими прилагательными можно описать этот интерьер.

Участие в проекте:

Пакет услуг «Премиум»

Отзыв заказчика

В какой-то момент я стала владелицей собственной квартиры, в какой-то момент я получила ключи и в какой-то момент я стала думать о ремонте.

Имея за плечами кое-какой опыт ремонта в новостройке, который я курировала самостоятельно, я точно понимала, как я НЕ ХОЧУ, а что я ХОЧУ с этим еще предстояло разобраться.

На Олин профиль я наткнулась в одной из социальных сетей, ознакомилась с сайтом, вариантами сотрудничества и нашла то что нужно – режим «под ключ». С учетом моей занятости я понимала, что мое участие в проекте должно быть минимальным, я не была готова контролировать строителей, координировать их взаимодействие с дизайнером и реализацию дизайн проекта, осуществлять выбор поставщиков, организовывать комплектацию, закупку, доставку, решать вопросы «если что-то пойдет не так», а не так пойдет обязательно, поверьте! )))

Все это должен решать и координировать профессионал, тогда вам остается только самое приятное: согласовывать материалы, тестировать мебель, выбирать технику и следить за проектом на расстоянии, радуясь фото и видео отчетам. Конечно, вас не ограничивают в доступе до объекта, ваша вовлеченность зависит только от вашего желания или возможности.

3 месяца на разработку дизайн-проекта, 6 месяцев на осуществление основных работ и 1 месяц на «наведение лоска», ведь я въезжала в квартиру, где меня ждала посуда и была заправлена кровать ;-)

Немаловажно отметить, что проект был реализовать без нарушений сроков и в рамках утвержденного бюджета, а ожидание и реальность полностью соответствовали друг другу!

Кстати, мой заказ был в некотором роде вызовом для дизайнера. Я требовала лаконичности, монохромности в отличие от характерных для Ольги цветовых решений и, на мой взгляд, Оля справилась превосходно. Было забавно, как в процессе работы уже я стала переходить на сторону цвета, но Оля опытно и твердо держала точный курс ;-)

Кроме того, все мои требования и пожелания по размещению, наполнению, оснащению были учтены и реализованы даже лучше, чем я могла себе представить.

Несправедливо было бы не упомянуть и строительную бригаду, ребята работают очень аккуратно, ответственно и качество работ на высоте.

Одним словом, весь процесс от первого звонка дизайнеру до переезда был очень приятным и позитивным. Спасибо за это путешествие и спасибо за удовольствие возвращаться домой!

Ольга

В какой-то момент я стала владелицей собственной квартиры, в какой-то момент я получила ключи и в какой-то момент я стала думать о ремонте.

Имея за плечами кое-какой опыт ремонта в новостройке, который я курировала самостоятельно, я точно понимала, как я НЕ ХОЧУ, а что я ХОЧУ с этим еще предстояло разобраться.

На Олин профиль я наткнулась в одной из социальных сетей, ознакомилась с сайтом, вариантами сотрудничества и нашла то что нужно – режим «под ключ». С учетом моей занятости я понимала, что мое участие в проекте должно быть минимальным, я не была готова контролировать строителей, координировать их взаимодействие с дизайнером и реализацию дизайн проекта, осуществлять выбор поставщиков, организовывать комплектацию, закупку, доставку, решать вопросы «если что-то пойдет не так», а не так пойдет обязательно, поверьте! )))

Все это должен решать и координировать профессионал, тогда вам остается только самое приятное: согласовывать материалы, тестировать мебель, выбирать технику и следить за проектом на расстоянии, радуясь фото и видео отчетам. Конечно, вас не ограничивают в доступе до объекта, ваша вовлеченность зависит только от вашего желания или возможности.

3 месяца на разработку дизайн-проекта, 6 месяцев на осуществление основных работ и 1 месяц на «наведение лоска», ведь я въезжала в квартиру, где меня ждала посуда и была заправлена кровать ;-)

Немаловажно отметить, что проект был реализовать без нарушений сроков и в рамках утвержденного бюджета, а ожидание и реальность полностью соответствовали друг другу!

Кстати, мой заказ был в некотором роде вызовом для дизайнера. Я требовала лаконичности, монохромности в отличие от характерных для Ольги цветовых решений и, на мой взгляд, Оля справилась превосходно. Было забавно, как в процессе работы уже я стала переходить на сторону цвета, но Оля опытно и твердо держала точный курс ;-)

Кроме того, все мои требования и пожелания по размещению, наполнению, оснащению были учтены и реализованы даже лучше, чем я могла себе представить.

Несправедливо было бы не упомянуть и строительную бригаду, ребята работают очень аккуратно, ответственно и качество работ на высоте.

Одним словом, весь процесс от первого звонка дизайнеру до переезда был очень приятным и позитивным. Спасибо за это путешествие и спасибо за удовольствие возвращаться домой!

Ольга

ВИДЕООбзор проекта

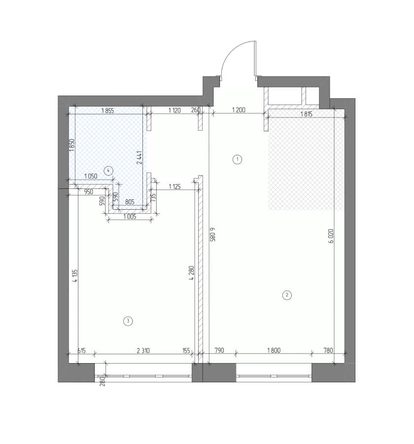
Планировка

До

После

реализация

визуализация