4-х комнатная

квартира в

ЖК «ты и я»

О проекте

Адрес:

Г. Москва, ЖК «Ты и Я»

Площадь:

92 м², 4 спальни

Сроки реализации:

Дизайн-проект — 3 месяца

Реализован

Квартира для семьи и с двумя маленькими детьми (девочки). Была задача максимальное мест хранения, функциональный современный интерьер с яркими деталями и акцентами.

Участие в проекте:

Пакет услуг «Оптимум»

Подробнее в статье интерьерного журнала
"Идеи Вашего Дома

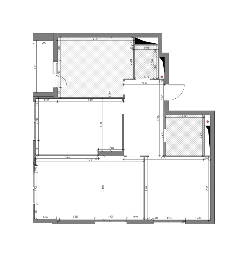
Планировка

До

После

реализация